Gewerberäume in zentraler Lage von Plauen

Dittrichplatz 9 | 08523 Plauen
Objektbeschreibung
Stadtgebiet
West
Keller/Box
Bodenkammer
Wäscheboden
Heizungsart
Allgemeine Infos
Wohnungs-Nr.
138006/9/40
Etage
EG
Raumzahl
3
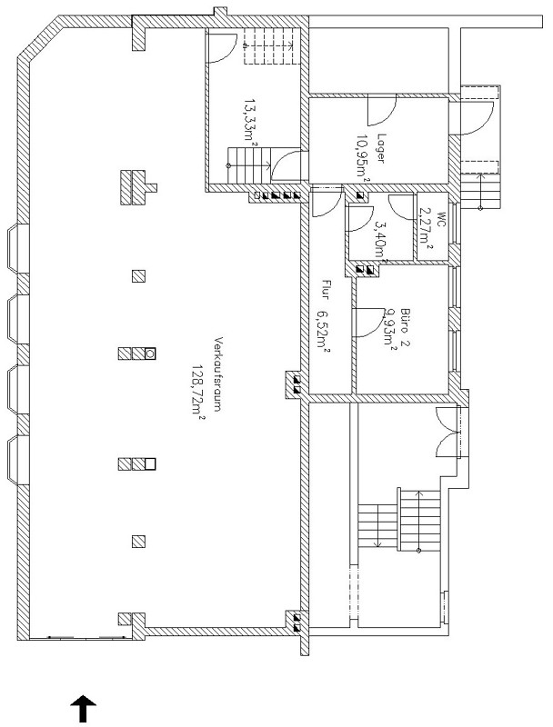
Fläche
175,12 m²
frei ab
01.11.2024
Nutzbar als/für
Praxis
Laden
Gastronomie
Lager
Büro
Besonderheiten
Energieausweisdaten
Energieausweisart
Verbrauch
Energieträger
Fernwärme
Energieverbrauch
118,00 kWh/(m²*a)
Energieklasse
D
Gebäudebaujahr
1955
Energieverbrauch enthält Warmwasser.
Stadtgebiet

Das angesagteste Wohnviertel Plauens ist zweifelsfrei der Stadtteil West. Hier findet man eine breite Angebotspalette für jede Lebenssituation und jeden Geldbeutel. Besonders bekannt und geschätzt ist der Stadtteil für seine zahlreichen zum Teil sehr hochwertig sanierten Gründerzeitbauten. Dieser Stadtteil blieb im zweiten Weltkrieg weitgehend verschont von den Bombardements der Alliierten, so dass man im Stadtteil West auch heute noch an so mancher Ecke den Glanz Plauens erahnen kann, den es in den ersten Jahrzehnten des 20. Jahrhunderts versprühte.

Rund um den Sternplatz befinden sich die gefragtesten Neubauwohnungen Plauens, denn von den Balkonen dieser Wohnungen hat man einen einzigartigen Blick über das südliche Vogtland. Darüber hinaus findet man im gesamten Stadtteil West aber natürlich auch bodenständigere und erschwinglichere Wohnungen.

Auch hier sind fast alle WbG-Häuser in den vergangenen Jahren umfassend saniert wurden. Natürlich arbeiten wir auch hier weiter an unseren Häusern, um unseren Mietern auch in Zukunft noch mehr Wohnkomfort bieten zu können. Seit Jahren rüsten wir im Seehausgebiet Aufzüge nach, bauen Balkone an, schaffen zusätzliche Parkplätze. Im Jahr 2010 haben wir in der Dittesstraße unser erstes Seniorenhaus eröffnet, mit Wohnungen, die speziell auf die Bedürfnisse älterer Mieter abgestimmt sind, und einem Wohngebiets-Treff, der mit seinen regelmäßigen Veranstaltungen offen ist, für alle Bewohner der Wohngebiets West.

Mit dem Laden der Google Karte akzeptieren Sie die Datenschutzerklärung von Google.
Mehr erfahren

Kontakt

Wohnungsbaugesellschaft Plauen mbH
Bahnhofstraße 65
08523 Plauen

Telefon:  03741 703-0
Telefax:  03741 703-120

Hotline: 03741 703-161

E-Mail:   post@wbg-plauen.de

Öffnungszeiten

Hauptgeschäftsstelle

Montag: 09:00 - 12:00 Uhr
Dienstag: 09:00 - 18:00 Uhr
Mittwoch: 09:00 - 12:00 Uhr
Donnerstag: 09:00 - 17:00 Uhr
Freitag: 09:00 - 12:00 Uhr
Havariedienst

Bei akuten Notfällen, wie z.B. Rohrbruch, Totalausfall der Heizung, Strom, Wasser oder Gas und Defekte bei denen Gefahr für Leib und Leben besteht erhalten Sie bei unserer Havarie-Hotline auch  außerhalb unserer Sprechzeiten schnelle und kompetente Hilfe.

03741 134 133